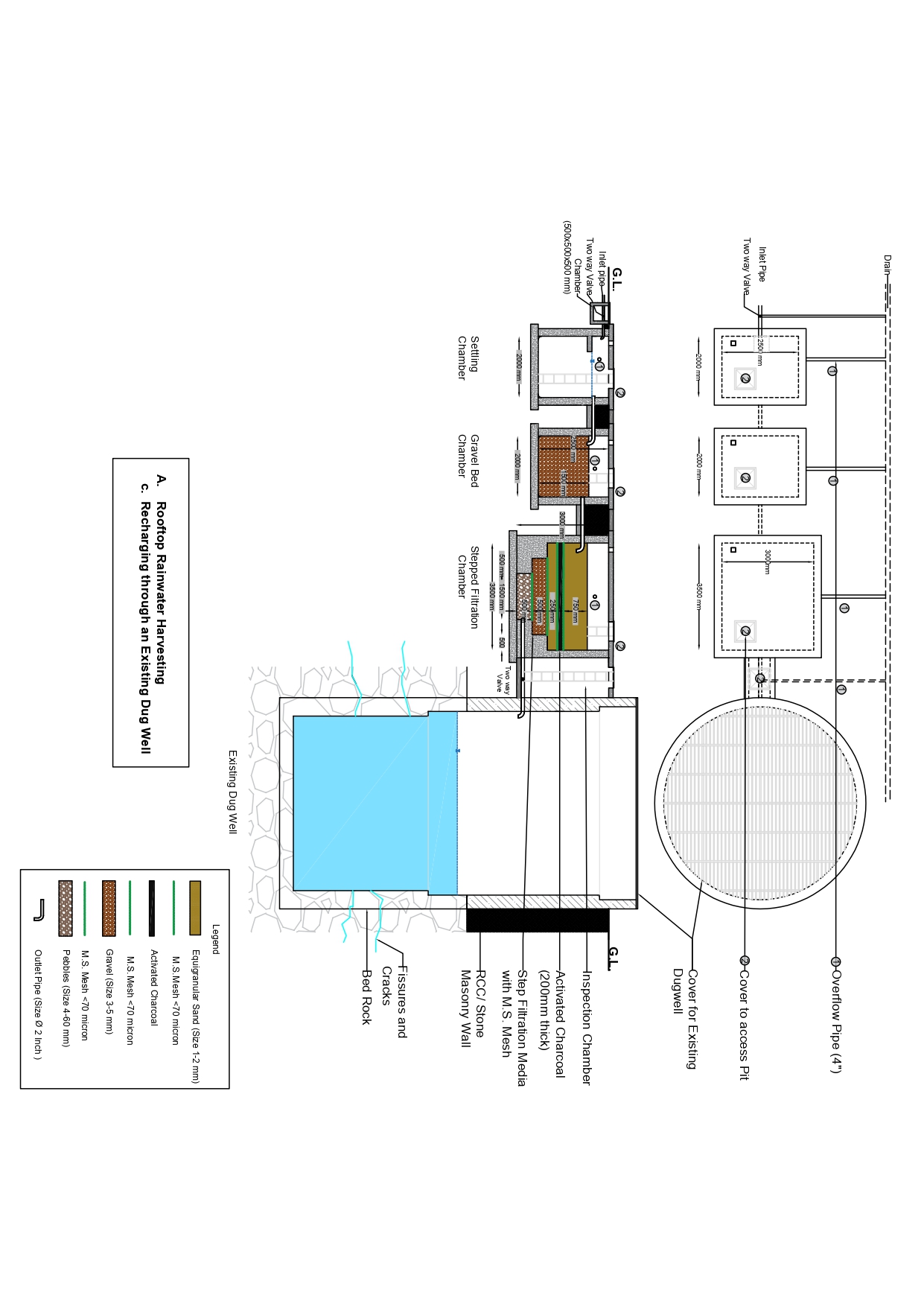
Recharging through an Existing Dug well

Bhujal Abhiyan

Recharging through an Existing Dug well

Recommended for

Roof Area up to 3000 sq. meters.

Annual rainfall up to 800 mm. With a daily limit up to 30 mm.

Existing single dug well with yield > 20000 lits/hr indicating presence of productive shallow aquifer/s.

Methodology

Channelize maximum rainwater collected on the roof of the building/s into one or two vertical drainpipes of at least 4” diameter. If the roof area is small, then collect roof top rainwater from adjoining buildings too. Bring this water through a single horizontal drainpipe of at least 4” diameter, laid down over or below the land surface. Join this drainpipe to the inlet pipe. If required, construct a small chamber of 0.5 m x 0.5 m x 0.5 m dimension for installation of a two-way valve.

Install a two-way ball bearing valve to the drainpipe, where it connects the inlet pipe of the filter media. Close this valve during the first spell of rain and allow the runoff water to go into the drain chamber. Also close this valve during the high intensity rainfall spells.

Using RCC slab, construct a settling tank of 2 m x 2 m x 2.5 m (L x W x D) size to collect the roof top rainwater. In continuation with this, construct a second chamber of the same size (2 m x 2 m x 2.5 m) for the Gravel Bed tank. In continuation with this, construct a stepped filtration tank of 3.5 m x 3 m x 3.5 m (L x W x D) size using RCC slab, to collect and filter the roof top rainwater. Please refer to the drawing for further detail.

This complete 3 tank assembly is to be constructed below the ground. Hence it is necessary to cover the tank with an RCC slab. Provide one manhole to each chamber within the slab as shown in the drawing for cleaning and emergency purposes.

Make a hole at 80 cm down below the surface in the settling tank to insert a PVC pipe of 2.5” diameter. Make a same size hole in the Gravel Tank on left and right walls at a depth of 80 cm and 90 cm from the top respectively. In the filtration tank make a same size hole at 90 cm from top. Also make a hole in the filtration chamber at the bottom to carry the filtered water into the well. Join each tank by using a PVC pipe of 2.5” as shown in the drawing. Seal all these holes appropriately after insertion of PVC pipes, so that the water will not leak outside.

Initially fill the Gravel Tank with clean uniform size gravel up to a height of 1.5 m from the bottom. In the filtration chamber create a filter bed composed of Sand, Gravel, Activated Charcoal, & Pebbles. This filter material is readily available.

Initially lay a 500 mm layer of pebbles at the bottom of the filter. Cover it with MS mesh of < 75 micron from the top. Over this MS mesh place a 500 mm thick layer of gravel (size 3 to 5 mm). This is also separated by a MS mesh of the same size. Add a sand layer of 250 mm thickness over the mesh followed by an activated charcoal layer of 200 mm thickness. Again, lay down 750 mm of sand bed over the activated charcoal. All these layers are necessarily separated by MS mesh.

For carrying the filtered & clean water from the filtration chamber, lay down a 2.5” diameter PVC outlet pipe no. 3 at the bottom of the inspection chamber. Insert this pipe in the existing dug well by making a hole using a drill machine. Using elbow bend fix a vertical pipe of the same diameter to outlet pipe 3 and allow the filtered water to fall in the well at appropriate depth.

Install a two-way valve in the PVC outlet pipe no. 3 for safety. This valve is to be connected to the drain chamber. This valve is to be opened if the dug well starts overflowing or at the time cleaning of the filter.

Provide an overflow pipe in the settling, Gravel bed & stepped filtration chambers to drain out the excess water collected. This is required for high intensity rainfall spells. These holes will help to maintain the appropriate hydrostatic pressure within all the chambers.

Process

The rooftop channelised water will come through the inlet pipe into the settling chamber. This water is allowed to fall over a small slab (8” long and 2” thick) to avoid the erosion of the tank walls. This slab will also help in reducing the velocity of the inflow water. Slowly the settling tank will get filled by the roof top rainwater. Soon after the water level in the chamber reaches the level of outlet pipe, it will start flowing into the gravel bed chamber.

As soon as the water column increases into the settling chamber, slowly the water becomes stagnant. This helps in converting the turbulent flow into laminar flow. It also allows to settle the silt load present within the roof top rainwater.

When the overflow water from the settling chamber enters the gravel chamber, it will start spreading over the gravel layer and because of high porosity it will go down naturally. During this movement heavier clay and some silt particles present in the water will start depositing into the pore spaces. As soon as it gets filled with water, the water will start flowing out from outlet no. 2 pipe present in the gravel bed tank.

This water will start entering the filtration tank from the top and start spreading in the sand bed and slowly moves down till it reaches the pebble layer. The water will settle down and remaining dust, clay and silt particles will get deposited at the bottom of the filter.

The activated charcoal helps in adsorption of the chemical and bacterial contaminants present in the water. Hence, it is the most important and non-negotiable constituent of the artificial filter bed.

The clean water from the pebble bed will slowly start flowing through outlet pipe no. 3 into the dug well. The velocity of this water will be very less. Hence the aquifer/s present within the dug well will accept this water continuously.

Precautions

During the first rainfall spell, close the inlet pipe two-way valve and drain the first rooftop runoff water. This will help in avoiding the heavy contaminant (including bacterial) load entering the chambers. During dry spells (dry days > 10) within the monsoon adopt the same procedure.

During continuous high intensity rainfall spells (>25 mm/hour) partially open the inlet pipe two-way valve, so that maximum roof top water will drain directly into the drain chamber.

When inflow of water increases in the settling chamber and outflow from the gravel bed and filtration chamber decreases, excess water collected there will automatically get drained out through overflow pipe given in the settling chamber.

If the dug well starts overflowing, then immediately close the outflow valve present in the inspection chamber and drain all the water into the drain chamber. At the time of cleaning the filter keep the outflow valve closed. This will help in protection of the dug well from siltation, contamination, or damage.

Maintenance

Every year it is necessary to clean the roof of the building, settling chamber, gravel bed and the filter chamber before monsoon.

Immediately after the monsoon is over, take out the stagnant water present in the settling chamber. Also take out the silt settled at the bottom of the tank. For cleaning purposes use the manhole given in the settling and filtration chambers.

Every year during March-April take out the upper layer of gravel from the gravel bed and sand from the filtration chamber and wash it thoroughly. After due drying, top up the gravel and sand layers respectively.

Once in two years take out the complete filter bed i.e. sand, gravel, and pebble layers. Clean, wash, dry them properly, and then again place in a filtration chamber. Replace the activated charcoal layer with a new one after 3 to 4 years.

The society/management of the building should train their personnel for the annual maintenance of the filter and make appropriate provision of funds.

Every year check the water quality parameters (chemical and bacteriological) of the borewell water at least during pre- and post-monsoon seasons.

Address

Bhujal Abhiyan Trust, Baner Pashan Link Road, Pune 411 021